
Вибрационный грохот серии BTS — это линейный вибрационный грохот, усовершенствованный на основе отмеченного наградами вибрационного грохота серии TZS, разработанного в сотрудничестве с Пекинским университетом науки и технологий.
Вибрационный грохот серии BTS — это линейный вибрационный грохот, усовершенствованный на основе отмеченного наградами вибрационного грохота серии TZS, разработанного в сотрудничестве с Пекинским университетом науки и технологий. Он обладает такими преимуществами, как высокая производительность и надежная работа. Широко используется в доменных печах, агломерациях, угольных шахтах и других отраслях промышленности.
1. Данная серия грохотов доступна с однослойной и двухслойной поверхностью. При одинаковых внешних размерах и производительности двухслойная поверхность обеспечивает более высокую эффективность просеивания.
2. В зависимости от условий эксплуатации, грохот может устанавливаться на неподвижном основании (рис. 1) или на передвижной раме с колесами и рельсовыми зажимами (как показано на крышке).
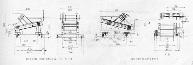
3. Основной тип привода данной серии грохотов показан на рисунке 1. Также возможна многомоторная система привода, при которой двигатель непосредственно крепится к вибратору, как показано на рисунке 2. Такая конструкция исключает необходимость в приводном валу и опоре двигателя, что обеспечивает очень компактные размеры.